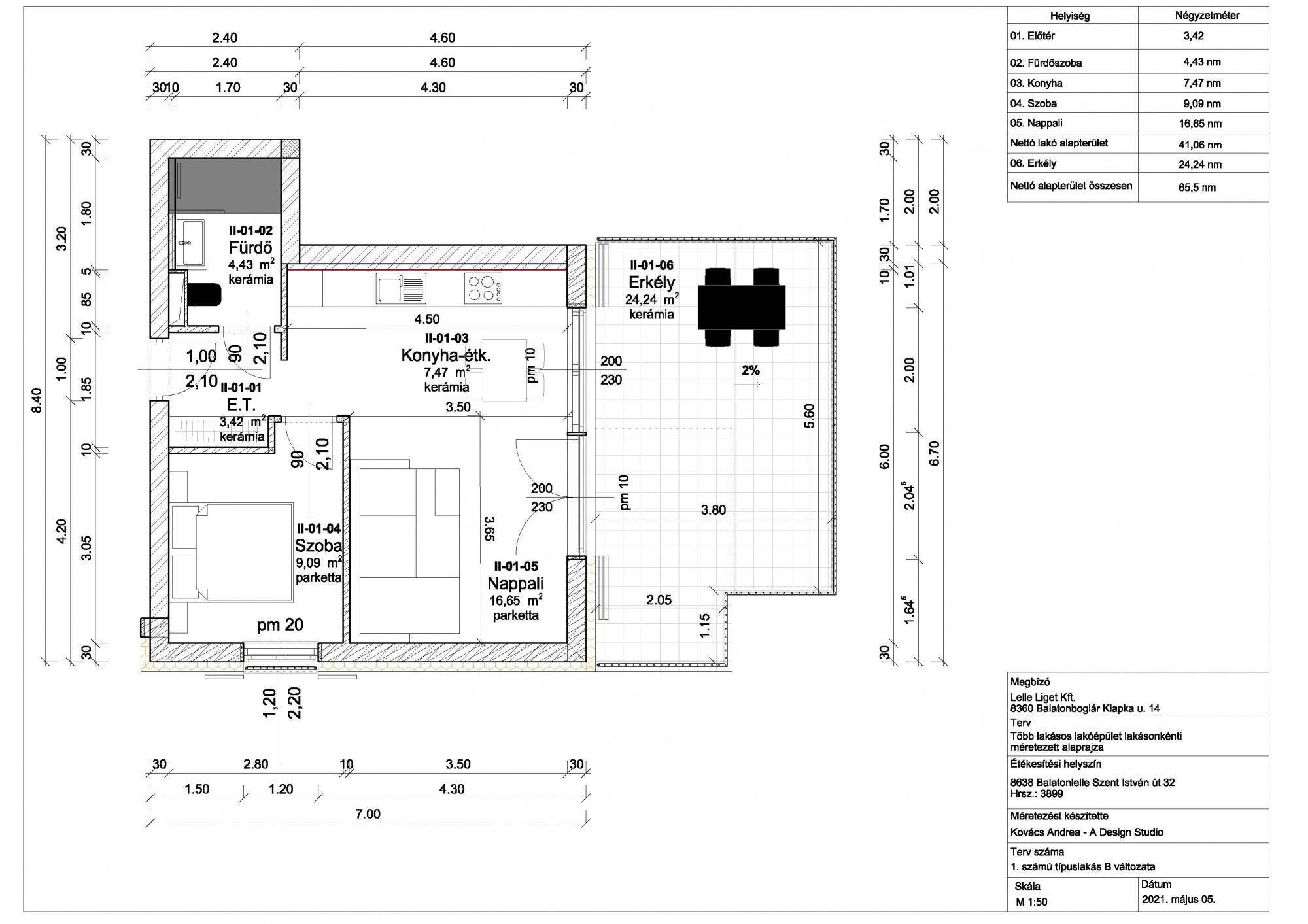
41.06
m2 Alapterület
53.18
m2 Teljes terület
1
Szoba
Szoba 1:9.09 m2
Terasz:24.24 m2
Nappali:16.65 m2
Konyha:7.47 m2
Fürdő:4.50 m2
3
Lakóépület
46
Lakás
53
Parkoló
2 700
m3 zöldterület
BALATONLELLE KÖZPONTJÁBAN
A Villaliget lakópark Balatonlelle központjában, zöld környezetben, egy gyönyörű ősfás ligetben épül, ahol kiemelt figyelmet kap a természetes környezet megóvása.
Ha fontos, hogy modern, városi övezetben, mégis egy zöld szigeten, a természeti értékek megtartását szem előtt tartó villaparkban találj rá balatoni otthonodra, akkor meglelted a legjobb helyet.
INTIMITÁS
A lakók a balatoni kisváros központjának minden előnyét élvezhetik
CSENDES KÖRNYEZET
Zöld sziget, a modern városi környezetben
KIS LAKÓSZÁM
Épületenkét 15/16 lakás
MINDEN EGY KARNYÚJTÁSNYIRA
Autóba sem kell ülnöd egy jó étteremhez vagy a strandoláshoz
CSALÁDOK SZÁMÁRA IDEÁLIS
A fák között szabadtéri szigetek és játszótér készül
TÁRSASHÁZAK ZÖLDENERGIÁVAL
Környezettudatos, energatakarákos technológiák
További lakások a szinten
| Megnevezés | Szám | Szoba | Alapterület | Terasz | Ár | Érdeklődés | Státusz |
|---|---|---|---|---|---|---|---|
| Platán 2.2 | 11 | 2 | 64.70 m2 | 14.56 m2 | - | Eladva | |
| Platán 2.3 | 12 | 1 | 50.24 m2 | 12.57 m2 | - | Eladva | |
| Platán 2.4 | 13 | 2 | 67.42 m2 | 13.34 m2 | - | Eladva | |
| Platán 2.5 | 14 | 2 | 67.24 m2 | 17.38 m2 | - | Eladva |


