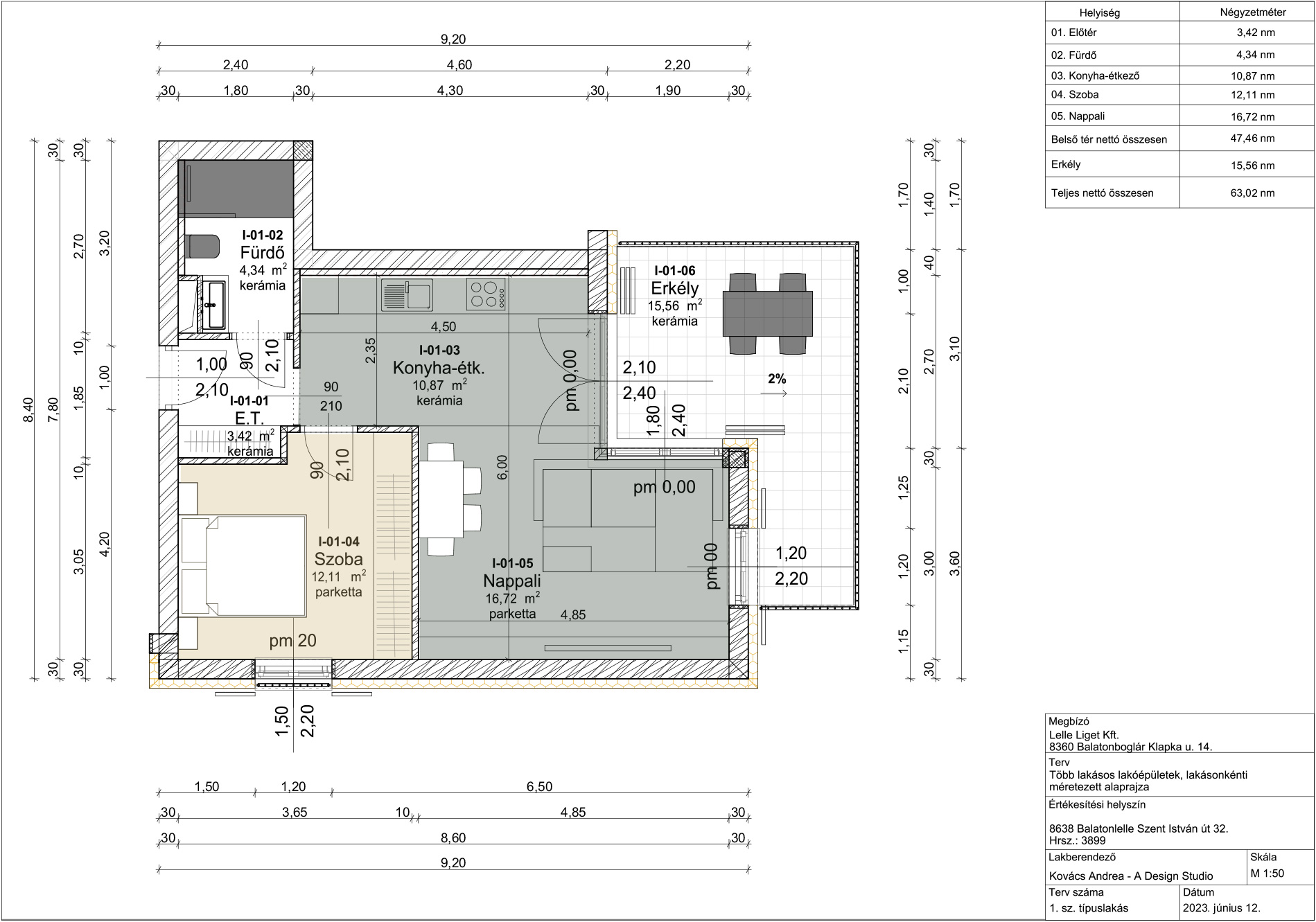
47.46
m2 Alapterület
63.02
m2 Teljes terület
1
Szoba
Szoba 1:12.11 m2
Terasz:15.56 m2
Előtér:3.42 m2
Nappali:16.72 m2
Konyha:10.87 m2
Fürdő:4.34 m2
3
Lakóépület
46
Lakás
53
Parkoló
2 700
m3 zöldterület
BALATONLELLE KÖZPONTJÁBAN
A Villaliget lakópark Balatonlelle központjában, zöld környezetben, egy gyönyörű ősfás ligetben épül, ahol kiemelt figyelmet kap a természetes környezet megóvása.
Ha fontos, hogy modern, városi övezetben, mégis egy zöld szigeten, a természeti értékek megtartását szem előtt tartó villaparkban találj rá balatoni otthonodra, akkor meglelted a legjobb helyet.
INTIMITÁS
A lakók a balatoni kisváros központjának minden előnyét élvezhetik
CSENDES KÖRNYEZET
Zöld sziget, a modern városi környezetben
KIS LAKÓSZÁM
Épületenkét 15/16 lakás
MINDEN EGY KARNYÚJTÁSNYIRA
Autóba sem kell ülnöd egy jó étteremhez vagy a strandoláshoz
CSALÁDOK SZÁMÁRA IDEÁLIS
A fák között szabadtéri szigetek és játszótér készül
TÁRSASHÁZAK ZÖLDENERGIÁVAL
Környezettudatos, energatakarákos technológiák
További lakások a szinten
| Megnevezés | Szám | Szoba | Alapterület | Terasz | Ár | Érdeklődés | Státusz |
|---|---|---|---|---|---|---|---|
| Ciprus 1.2 | 6 | 2 | 64.03 m2 | 14.10 m2 | - | Eladva | |
| Ciprus 1.3 | 7 | 1 | 50.07 m2 | 12.18 m2 | - | Eladva | |
| Ciprus 1.4 | 8 | 2 | 66.90 m2 | 12.93 m2 | - | Eladva | |
| Ciprus 1.5 | 9 | 2 | 66.80 m2 | 16.83 m2 | - | Eladva |


