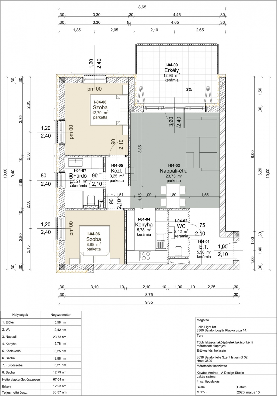
67.64
m2 Alapterület
80.57
m2 Teljes terület
2
Szoba









Szoba 1:8.88 m2
Szoba 2:12.79 m2
Terasz:12.93 m2
:3.00 m2
Nappali:23.73 m2
Konyha:5.78 m2
Kert:104.52 m2
WC:2.42 m2
Fürdő:5.21 m2
3
Lakóépület
46
Lakás
53
Parkoló
2 700
m3 zöldterület
BALATONLELLE KÖZPONTJÁBAN
A Villaliget lakópark Balatonlelle központjában, zöld környezetben, egy gyönyörű ősfás ligetben épül, ahol kiemelt figyelmet kap a természetes környezet megóvása.
Ha fontos, hogy modern, városi övezetben, mégis egy zöld szigeten, a természeti értékek megtartását szem előtt tartó villaparkban találj rá balatoni otthonodra, akkor meglelted a legjobb helyet.
INTIMITÁS
A lakók a balatoni kisváros központjának minden előnyét élvezhetik
CSENDES KÖRNYEZET
Zöld sziget, a modern városi környezetben
KIS LAKÓSZÁM
Épületenkét 15/16 lakás
MINDEN EGY KARNYÚJTÁSNYIRA
Autóba sem kell ülnöd egy jó étteremhez vagy a strandoláshoz
CSALÁDOK SZÁMÁRA IDEÁLIS
A fák között szabadtéri szigetek és játszótér készül
TÁRSASHÁZAK ZÖLDENERGIÁVAL
Környezettudatos, energatakarákos technológiák
További lakások a szinten
| Megnevezés | Szám | Szoba | Alapterület | Terasz | Ár | Érdeklődés | Státusz |
|---|---|---|---|---|---|---|---|
| Ciprus FSZ.1 | 1 | 1 | 47.65 m2 | 15.74 m2 | - | Eladva | |
| Ciprus FSZ.2 | 2 | 2 | 64.97 m2 | 14.10 m2 | - | Eladva | |
| Ciprus FSZ.3 | 3 | 1 | 50.07 m2 | 12.18 m2 | - | Eladva |


